++++ VENDU ++++
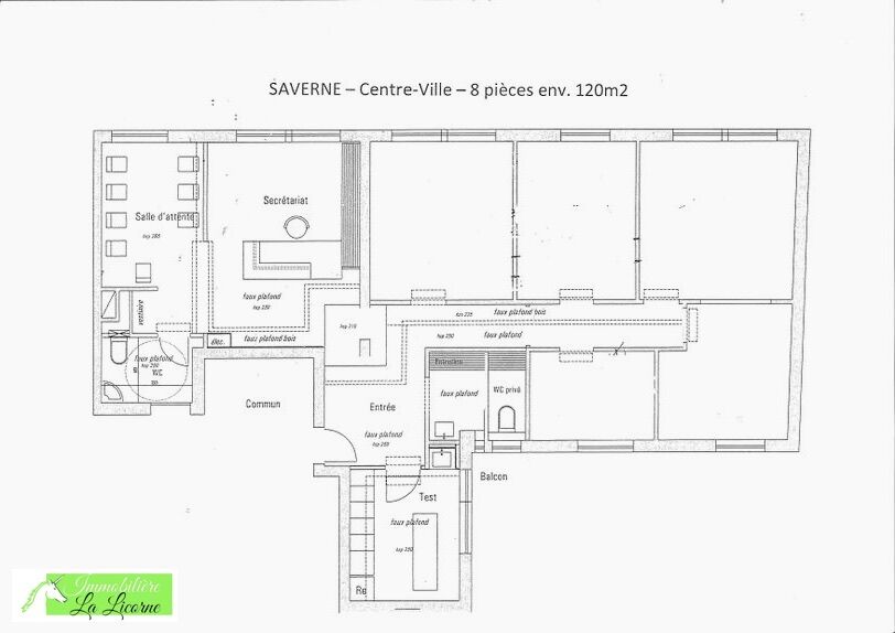
Nous vous proposons un appartement d’une surface de 120m2 environ au centre-ville de Saverne. Il se trouve au 3e étage et comprends 8 pièces.
L’appartement se compose d’une entrée donnant accès à un couloir qui donne accès aux huit pièces. Il peut être composé : d'un espace salon/séjour/cuisine ; de 4 chambres et d’un bureau. D’une salle de bain à aménager. Et de 2 toilettes séparées avec lave-mains. Vous disposerez de différentes possibilités d'aménagement.
L’appartement était utilisé en local professionnel des travaux d’aménagement sont à prévoir (cuisine, salle de bain ce qui offre des possibilités d'aménagement). Il est également possible de recréer 2 appartements indépendants.
Le bien est complété par un débarras sur le palier, un grenier et 2 caves.
L’appartement se trouve à 5 minutes à pied de la gare (axe Paris-Strasbourg), dans la Grand’Rue, proche de toutes les commodités et des écoles.
Le chauffage par radiateurs et l’eau chaude sont fournis par une chaudière collective au gaz.
Climatisation dans toutes les pièces : PAC réversible électrique.
Double vitrage PVC
Ascenseur dans la copropriété. (Accessible après un escalier d’un demi-niveau)
DPE D 212 kWh/m2 an (dont émissions de gaz à effet de serre 43kg CO2m2/an) DPE réalisé le 29/06/2022
Estimation des coûts annuels d'énergie pour un usage standard du logement entre 1729€ et 2339€ prix moyen des énergies indexés au 1er janvier 2021 (abonnements compris)
Copropriété de 38 lots
Charges de copropriété : 3916 €/an
Pas de procédures en cours
Mandat 2022/107
Contactez-moi pour plus de détails et organiser une visite.
Barbara WOLFF, Tel. 07 67 10 22 94 ou vente@immo-la-licorne.fr
Le prix de vente est de 198 340€ Frais d’agence inclus (frais d’agence 5,5% soit 10 340€ à la charge de l’acquéreur)
Agence Immobilière LA LICORNE – 9 rue du Luxembourg 67700 SAVERNE
En remplissant ce formulaire, vous pouvez nous envoyer vos coordonnées afin que nous puissions vous recontacter.
N'hésitez pas à y poser vos questions sur le bien. Nous vous répondrons dans les plus brefs délais.
* champs obligatoires. Vos données resteront confidentielles et ne seront pas communiquées à un tiers.
Elles serviront uniquement à prendre contact avec vous et ne sont pas stockées dans la base de données du site internet.
En remplissant ce formulaire, vous pouvez nous générer l'envoi d'un email.
* champs obligatoires. Vos données resteront confidentielles et ne seront pas communiquées à un tiers.
Elles serviront uniquement à générer l'email et ne sont pas stockées dans la base de données du site internet.
